Υπογράφηκε το πρωί της Πέμπτης 23 Οκτωβρίου 2025 στο Δημαρχείο Νάουσας, από τον Δήμαρχο Νάουσας κ. Νίκο Κουτσογιάννη και τον νόμιμο εκπρόσωπο της αναδόχου εταιρείας «Σ. ΦΑΣΙΑΣ ΚΑΤΑΣΚΕΥΑΣΤΙΚΗ & ΣΙΑ Ε.Ε.», παρουσία του Αντιδημάρχου Τεχνικών Έργων κ. Ορδουλίδη και του Διευθυντή της Τεχνικής Υπηρεσίας κ. Κυράνου, η σύμβαση κατασκευής του καταφυγίου για τη φιλοξενία αδέσποτων ζώων συντροφιάς και κτηνιατρείου του Δήμου Ηρωικής Πόλεως Νάουσας, προϋπολογισμού 384.219,98 ευρώ.
Η σύμβαση αφορά στην κατασκευή ενός σύγχρονου και πλήρως εξοπλισμένου καταφυγίου αδέσποτων ζώων συντροφιάς στην Τοπική Κοινότητα Γιαννακοχωρίου. Το νέο καταφύγιο θα έχει τη δυνατότητα να φιλοξενεί αδέσποτα σκυλιά του Δήμου Νάουσας, καθώς και να παρέχει χώρο για τη φιλοξενία επικίνδυνων ή ασθενών ζώων, συμπεριλαμβανομένων αυτών που παρουσιάζουν επιθετική συμπεριφορά ή είναι φορείς σοβαρών νοσημάτων.
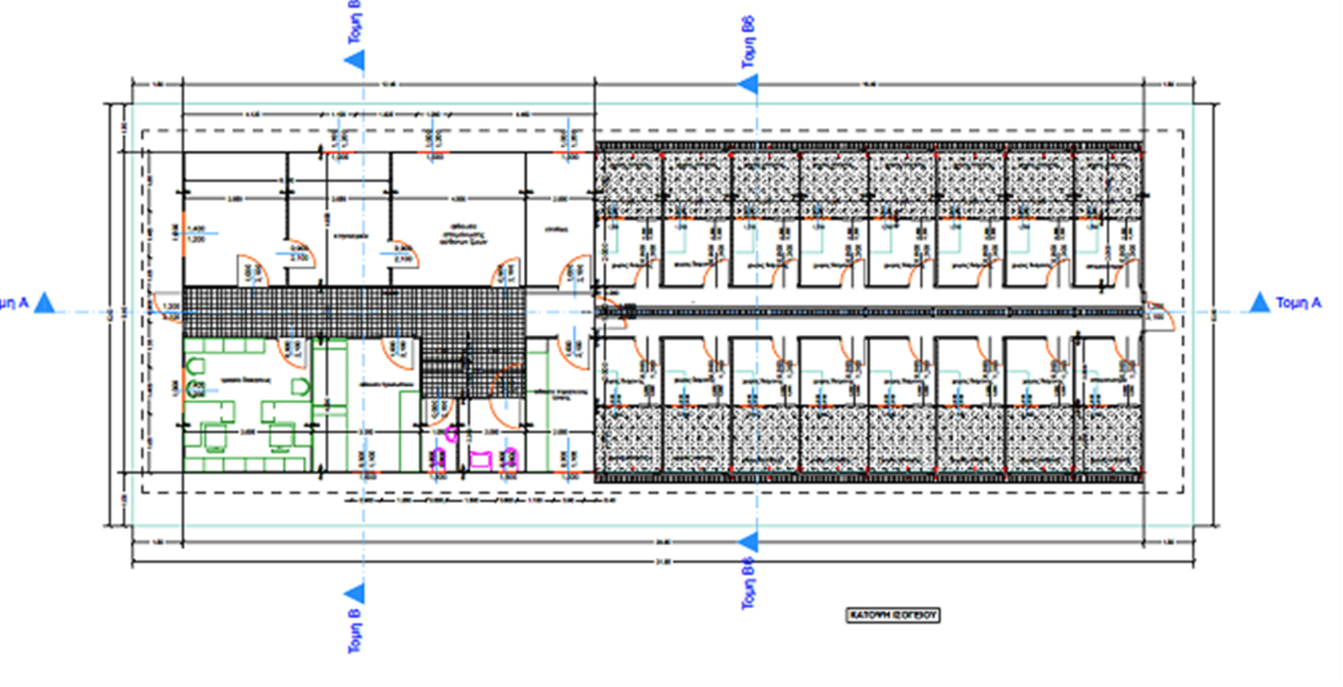
Το καταφύγιο θα περιλαμβάνει κτηνιατρείο για την παροχή ιατρικής φροντίδας και στειρώσεων, ενώ θα διαθέτει κατάλληλους περιφραγμένους χώρους φιλοξενίας καθαρού εμβαδού 4,00 μ² ανά ζώο, με πάνελ ύψους τουλάχιστον 1,70 μ. για προστασία από τις καιρικές συνθήκες. Ο σχεδιασμός του έργου προβλέπει επίσης ειδικά διαμορφωμένο χώρο αποθήκευσης τροφών, χώρο άσκησης των ζώων, καθώς και απομονωτήριο για ύποπτα ή μολυσματικά περιστατικά, με στόχο την ασφάλεια και την ευζωία όλων των φιλοξενούμενων ζώων.

Δήλωση Δημάρχου Νάουσας κ. Νίκου Κουτσογιάννη
«Η υπογραφή της σύμβασης για την κατασκευή του Καταφυγίου Αδέσποτων Ζώων αποτελεί ένα σημαντικό βήμα για τον Δήμο μας, τόσο σε επίπεδο πολιτισμού όσο και κοινωνικής ευαισθησίας. Πρόκειται για ένα έργο ουσίας που έρχεται να δώσει λύση σε ένα χρόνιο ζήτημα, προσφέροντας αξιοπρεπείς συνθήκες φιλοξενίας, περίθαλψης και φροντίδας στα αδέσποτα ζώα της περιοχής μας, συμβάλλοντας ταυτόχρονα καθοριστικά στη βελτίωση της καθημερινότητας των δημοτών».








